- Насосы
Насосы вертикальные многоступенчатые из нержавеющей стали
Насосы горизонтальные многоступенчатые из нержавеющей стали
Насосы центробежные из нержавеющей стали
Насосы центробежные из нержавеющей стали с рабочим колесом открытого типа
Насосы вертикальные циркуляционные с линейным расположением патрубков
Насосы циркуляционные (мокрый ротор)
Насосы центробежные моноблочные
Насосы погружные для сточных вод
Дренажные насосы
Дренажные насосы (шламовые, водоотливные)
Погружные насосы (скважинные, для колодцев)
Канализационные насосы
Вихревые насосы
Центробежные насосы
Насосные станции
Насосы для подкачки
- Специализированные насосы
- Компрессоры и воздуходувки
- Электродвигатели
- Генераторы
- Аксессуары и комплектующие
Консольно-моноблочный насос CNP NIS250-200-250 (22 кВт)

Рабочие характеристики:

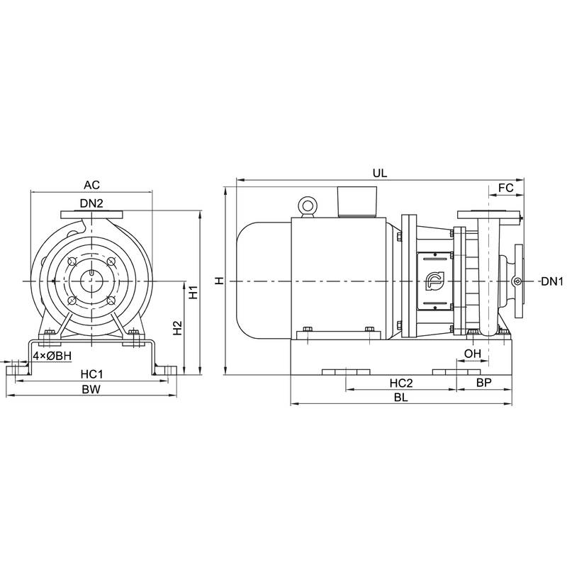
Размерные характеристики:

Насосы серий NIS – это консольные/консольно-моноблочные одноступенчатые насосы с горизонтальным расположением вала. Проточная часть разработана с применением передовых технологий гидродинамического моделирования (CFD) и прочностного анализа методом конечных элементов.
Насосные агрегаты состоят из двух основных частей (проточная часть и электродвигатель) и монтируются на общем рамном основании. Напорный патрубок насосной части – радиальный, всасывающий – осевой. Благодаря технологичной конструкции, демонтаж подшипникового узла с валом, узлом уплотнений и рабочим колесом может осуществляться без отсоединения корпуса насоса от трубопроводной системы.
Насосы серий NIS являются моноблочными: соединение валов осуществляется с помощью шпоночного соединения (вал насосной части концентрично устанавливается на вал электродвигателя).
Область применения:
Насосы серий предназначены для следующих областей применения:
- Водоснабжение и водоподготовка
- Системы кондиционирования
- Системы охлаждения и циркуляции
- Противопожарные системы
- Ирригационные системы
- Технологические системы
Электродвигатель:
Стандартный асинхронный трехфазный электродвигатель закрытого типа с воздушным охлаждением (размеры соответствуют требованиям стандарта GB/28575).
- Количество полюсов: 2, 4;
- Степень защиты: IР55;
- Класс изоляции: F;
- Класс энергоэффективности: IE3;
- Частота: 50 Гц;
- Напряжение питания: до 3 кВт:
- 3 x 220/380 В
- от 3 кВт: 3 x 380 В
- 1 x 220 В (доступно по запросу)
Условия эксплуатации:
- Максимальное рабочее давление: 16 бар
- Максимальное давление на входе: 6 бар
- Температура окружающей среды: не выше 40°C
- Температура перекачиваемой жидкости: от -15 до +110 °C
Используемые материалы:
| № | Наименование | Материал | Код/AISI/ASTM |
|---|---|---|---|
| 1 | Корпус насоса |
Чугун QT500-7/НТ200 Нерж. сталь ZG07Cr19Ni9 |
ASTM80-55/AISl304 |
| 2 | Рабочее колесо |
Чугун HT200 Нерж. сталь ZG07Cr19Ni9 |
ASTM25B/AISl304 |
| 3 | Крышка насоса |
Чугун HT200 Нерж. сталь ZG07Cr19Ni9 |
ASTM25B/AISl304 |
| 4 | Торцевое уплотнение | Графит/карбид кремния | |
| 5 | Кольцо уплотнительное | Бутадиен-нитрильный каучук (NBR) | |
| 6 | Вал | Нерж. сталь 20Сr1З/06Сr19Ni10 | AISl420/AISl304 |
| 7 | Фланцевый адаптер | Чугун НТ200 | ASTM25B |
| 8 | Рама | Q235-A | AISIA570 |
| 9 | Электродвигатель |
Перекачиваемая жидкость
Насос предназначен для перекачивания чистых, неагрессивных, невоспламеняющихся жидкостей, не содержащих твёрдых включений или волокон, которые могут оказывать механическое или химическое воздействие на насос. Перекачивание жидкостей с плотностью и/или кинетической вязкостью выше, чем у воды, приводит к следующему:
- Снижение напора
- Снижение производительности
- Рост энергопотребления
Остались вопросы по "Консольно-моноблочный насос CNP NIS250-200-250 (22 кВт)"? Звоните нам
Насосы с бензиновым и дизельным двигателем
Газовые насосы
Диафрагменные насосы
Насосы для фонтанов, бассейнов
Насосы прогрессивные полостные (шнековые)
Насосы для перекачки химических жидкостей
Плунжерные насосы
Топливные насосы
Трюмные насосы
Компрессоры автомобильные, инверторы
Компрессоры воздушные
Воздуходувки распыляющие
Воздуходувки электрические
ЭМ
АИР
Vodotok БГИЗ
Vodotok БГИО
Автоматические трубные муфты
Выключатели поплавковые
Частотные преобразователи
Регуляторы механические
Регуляторы электронные

